Centrifugal Fans — Series U/HF
High-efficiency centrifugal fans designed for industrial ventilation and air extraction with enhanced airflow and pressure capabilities.
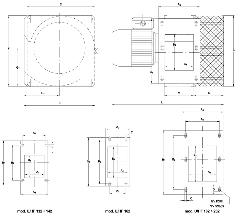
The U/HF series centrifugal fans are engineered to convey air and slightly dusty air at temperatures up to 80 °C. They provide high airflow with increased pressure performance, making them suitable for demanding industrial ventilation systems and extraction applications.
Industrial air ventilation and extraction systems
Process ventilation and extraction of slightly dusty air
Medium-to-high pressure airflow demands
Integration into duct networks with varying resistance