Centrifugal Fans — Series U/CB
High-capacity centrifugal fans designed for conveying clean or slightly dusty air in industrial ventilation systems.
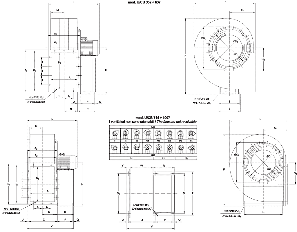
The U/CB series centrifugal fans are designed to intake and convey clean or slightly dusty air at temperatures up to 80 °C, making them ideal for industrial environments that require very high airflow capacities.
Industrial ventilation and air movement
High-capacity air extraction and supply systems
Conveying clean or lightly dusty air streams
Integration with large ducted systems and ventilation networks